Zpět Zpět na výpis nemovitostí

Exkluzivní Nabídka: Pozemky 981m2 s Prodlouženým Stavebním Povolením pro Moderní Rodinný Dům

Stav

Volný

Umístění objektu

klidná část obce

19 900 000 Kč

Pohlídejte si cenu této nemovitosti Pohlídejte si cenu této nemovitosti

Sledovat dostupnost

Upozornění

Pohlídejte si změny u této nemovitosti

Dáme vám vědět, ať už se změní cena nebo stav nemovitosti.

Upozornění

O vaše data je u nás postaráno. Přečtěte si naše podmínky pro ochranu os. údajů.

Kalkulačka financování Kalkulačka financování

Spočítejte si, na kolik vás vyjde hypotéka

Spočítejte si, na kolik vás vyjde hypotéka

Spočítejte si, na kolik vás vyjde hypotéka

Více o této nemovitosti

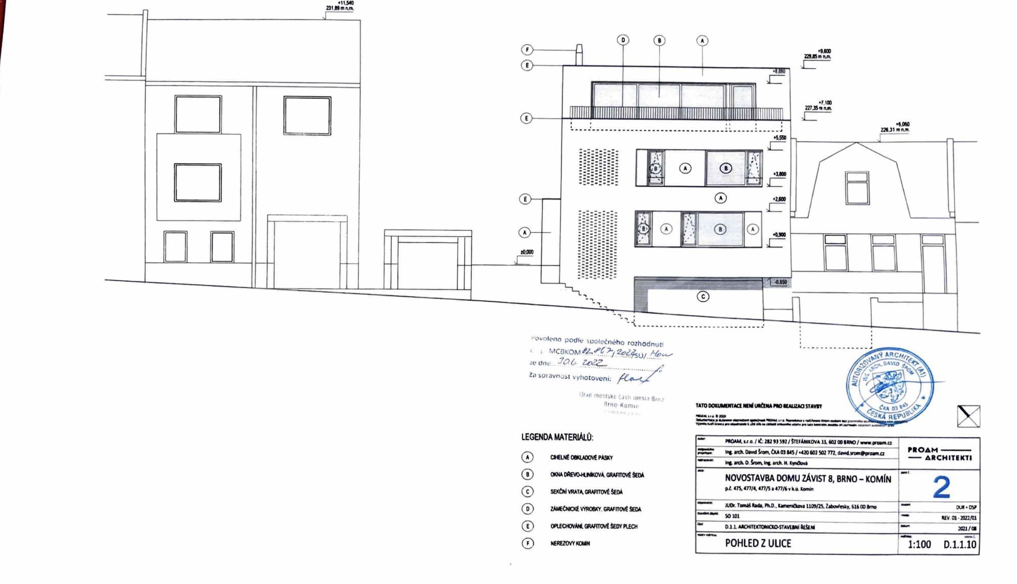
Exkluzivní Nabídka: Pozemky s Prodlouženým Stavebním Povolením pro Moderní Rodinný Dům v Brno-Komín – Ulice Závist 8 Lokalita: Závist 8, Brno-Komín, Česká republika Představujeme jedinečnou příležitost získat soubor stavebních pozemků s kompletně schváleným a prodlouženým stavebním povolením pro výstavbu luxusního moderního rodinného domu v jedné z nejžádanějších lokalit Brna – v klidné a prestižní čtvrti Komín. Tato nabídka minimalizuje starosti s byrokracií a umožňuje okamžitě zahájit realizaci vašeho vysněného domova. Lokalita a Pozemky: Nemovitost se nachází na adrese Závist 8 v Brně-Komíně, která je známá svým klidem, blízkostí přírody a zároveň výbornou dostupností do centra města a na dálnici. Projekt je situován na několika vzájemně propojených parcelách, které dohromady tvoří ideální zázemí pro komfortní bydlení: p.č. 475: Zastavěná plocha a nádvoří o výměře 104 m². p.č. 476: Pozemek o výměře 109 m². p.č. 477/4: Zahrada o velkorysých 585 m². Součástí projektu jsou i další pozemky, konkrétně p.č.: 477/5: 135m2 p.č.: 477/6: 48 m2 které zajišťují kompaktní a funkční celek pro realizaci celého záměru. Popis Projektu – Moderní Rodinný Dům: Projektovaná novostavba představuje architektonicky zajímavý čtyřpodlažní dům (1 podzemní, 3 nadzemní) s elegantními cihlovými obkladovými pásky a dřevohliníkovými okny v grafitově šedé barvě. Dům s plochou střechou se vyznačuje promyšlenými dispozicemi a vysokým standardem: Zastavěná plocha: 145,5 m². Užitná podlahová plocha: 367,6 m². Obytná plocha: 139,9 m². Dispozice (1 bytová jednotka): 1.PP (podzemní): Dvougaráž, sklep, sklad, technická místnost, prádelna, výtahová šachta. 1.NP (přízemí): Vstupní zádveří, prostorná hala, velký obytný prostor, moderní kuchyň, spíž, pokoj pro hosty, koupelna, WC a venkovní terasa. 2.NP: Ložnice, pokoje, velkorysé šatny, koupelna, WC, terasa pro relaxaci. 3.NP: Chodba s pracovním koutem, fitness a relaxační místnost, sprchový kout, šatna, WC, klidná zahradní terasa (cca 8,2 m²) a velká uliční terasa (cca 32,4 m²). Vybavení: Dům bude vytápěn efektivním systémem tepelného čerpadla země/voda s využitím zemního vrtu, doplněným krbovými kamny. Kompletní napojení na veškeré inženýrské sítě (elektřina, voda, plyn, kanalizace, dešťová kanalizace). Venkovní úpravy: Nový vjezd, venkovní schodiště, zpevněné plochy, opěrné zdi, oplocení a zahradní úpravy. Klíčová Výhoda: Stavební Povolení Již Prodlouženo! Nemusíte se obávat zdlouhavého procesu získávání povolení. Společné územní a stavební povolení pro novostavbu ( Novostavba domu Závist 8, Brno-Komín ) bylo vydáno již 30. června 2022 a následně prodlouženo do 22. března 2027. Všechny potřebné dokumenty jsou schválené a připravené k okamžité realizaci stavby. Původní dům na p.č. 475 je schválen k demolici. Pro koho je tato nabídka: Pro náročné klienty hledající moderní bydlení bez kompromisů. Pro ty, kteří ocení unikátní architektonické řešení a funkčnost. Pro investory, kteří chtějí rychle realizovat stavební projekt bez průtahů. Nenechte si ujít tuto výjimečnou příležitost a kontaktujte nás pro detailní informace a prohlídku! Na pozemku je aktuálně umístěn dům, který lze pronajímat, nebo úplně zbourat. Na zadním pozemku bylo kdysi povoleno UR na výstavbu ateliéru, na základě tohoto faktu bude možné UR obnovit. Každý klient si může projekt předělat dle svých představ.

Lokalita

Obec

Ulice

Informace o nemovitosti

Stav

Volný

Typ smlouvy

Prodej

Typ nemovitosti

Parcela

Další informace

Umístění objektu

klidná část obce

Navigovat k nemovitosti Navigovat k nemovitosti

Máte zájem o tuto nemovitost?

Kontaktujte mě a domluvme se na prohlídce

Dejte nám vědět, s čím vám můžeme pomoct

Osobně s vámi projdeme každý detail

Preferovaný den prohlídky

Preferovaný čas prohlídky

Nejpozději do 24 hodin se ozveme nazpátek.

O vaše data je u nás postaráno. Přečtěte si naše podmínky pro ochranu os. údajů.

Děkujeme za váš zájem

Vaše informace jsme přijali a brzy se vám ozveme.

Váš požadavek byl úspěšně odeslán

Dejte nám vědět, s čím vám můžeme pomoct

Osobně s vámi projdeme každý detail

Podobné nemovitosti v naší nabídce

Mohlo by vás také zaujmout

Odbornost a zkušenost

Odbornost a zkušenost

Známé ceny, právo i lokální trh. Správné nacenění bez zbytečných chyb.

Silný marketing

Silný marketing

Profifoto, inzerce, databáze klientů a 3D prohlídky pro rychlejší prodej.

Bezpečný průběh

Bezpečný průběh

Prověření kupujících, právní servis a úschova peněz. Minimum rizik.

Úspora času

Úspora času

Makléř zajistí prohlídky, smlouvy i komunikaci. Vy šetříte čas i nervy.